TỦ ĐÔNG TIẾP XÚC (CONTACT FREEZER): CÔNG NGHỆ CẤP ĐÔNG BLOCK HIỆU SUẤT CAO NHẤT HIỆN NAY
Trong công nghiệp chế biến thủy sản, đặc biệt là các mặt hàng xuất khẩu dạng khối (Block) như tôm, cá tra, surimi hay thịt gia súc, Tủ đông tiếp xúc (Contact Freezer) là thiết bị không thể thay thế. So với các phương pháp cấp đông gió (Air Blast), tủ đông tiếp xúc mang lại hiệu suất truyền nhiệt vượt trội nhờ cơ chế dẫn nhiệt trực tiếp, giúp doanh nghiệp tiết kiệm đến 30% chi phí điện năng vận hành.
CÔNG TY TNHH XUẤT NHẬP KHẨU PTG chuyên thiết kế và chế tạo Tủ đông tiếp xúc theo tiêu chuẩn quốc tế, sử dụng tấm lắc nhập khẩu và hệ thống ben thủy lực mạnh mẽ. Hotline tư vấn kỹ thuật: 0909 663 996.
1. Tủ Đông Tiếp Xúc Là Gì? Phân Loại
Tủ đông tiếp xúc (Contact Freezer hay Plate Freezer) là thiết bị cấp đông trong đó sản phẩm (thường được đóng trong khay kim loại) được kẹp chặt giữa hai tấm kim loại rỗng (gọi là tấm lắc - plates). Môi chất lạnh sẽ lưu thông bên trong các tấm lắc này để lấy nhiệt từ sản phẩm.
Dựa trên cấu tạo, thiết bị được chia làm 2 loại chính:
- Tủ đông tiếp xúc dạng ngang (Horizontal Plate Freezer): Phổ biến nhất trong các nhà máy chế biến trên đất liền. Các tấm lắc được xếp nằm ngang, nâng hạ bằng thủy lực. Dùng để cấp đông các block tôm, cá, thịt.
- Tủ đông tiếp xúc dạng đứng (Vertical Plate Freezer): Thường dùng trên tàu đánh cá hoặc nhà máy chế biến phụ phẩm. Các tấm lắc đặt thẳng đứng, sản phẩm được đổ trực tiếp vào khe giữa các tấm (không cần khay).
2. Nguyên Lý Hoạt Động: Dẫn Nhiệt Trực Tiếp
Khác với hầm đông gió sử dụng không khí lạnh làm môi trường trung gian để truyền nhiệt (Đối lưu), tủ đông tiếp xúc hoạt động dựa trên nguyên lý Dẫn nhiệt (Conduction).
Quy trình diễn ra như sau:
- Bước 1 (Nạp liệu): Các khay sản phẩm được đặt vào giữa các tấm lắc đang ở trạng thái mở.
- Bước 2 (Ép thủy lực): Hệ thống ben thủy lực hạ xuống, ép các tấm lắc tiếp xúc chặt vào cả mặt trên và mặt dưới của khay sản phẩm. Áp lực ép giúp loại bỏ không khí dư thừa, tăng diện tích tiếp xúc truyền nhiệt.
- Bước 3 (Cấp đông): Môi chất lạnh (NH3 lỏng hoặc Freon) ở nhiệt độ âm sâu (-40 độ C đến -45 độ C) được bơm tuần hoàn vào bên trong các tấm lắc. Nhiệt từ sản phẩm truyền trực tiếp qua vỏ khay và thành tấm lắc vào môi chất lạnh.
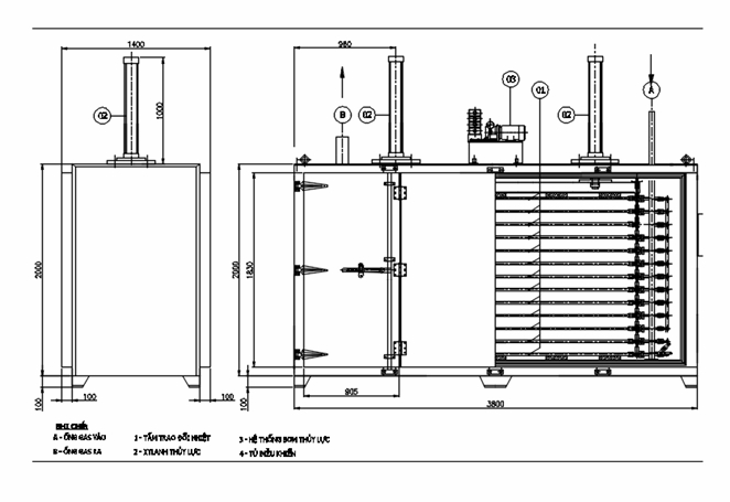
3. Cấu Tạo Chi Tiết Hệ Thống (Model PTG)
Một hệ thống tủ đông tiếp xúc hoàn chỉnh do PTG cung cấp bao gồm các bộ phận chính sau:
3.1. Tấm lắc cấp đông (Freezing Plates)
Đây là bộ phận quan trọng nhất. PTG sử dụng tấm lắc làm bằng hợp kim nhôm đúc đặc biệt, có khả năng chịu áp suất cao và truyền nhiệt cực tốt (tốt hơn thép gấp 3-4 lần). Kích thước tấm lắc tiêu chuẩn thường là 2200mm x 1200mm hoặc tùy chỉnh.
3.2. Hệ thống thủy lực (Hydraulic System)
Bao gồm trạm nguồn thủy lực, xi lanh (ben) nâng hạ và hệ thống cần dẫn hướng. Hệ thống này đảm bảo lực ép đồng đều lên toàn bộ mẻ hàng, giúp block sản phẩm sau khi đông có bề mặt phẳng tuyệt đối, vuông vức và đúng kích thước khuôn.
3.3. Vỏ tủ cách nhiệt (Insulated Cabinet)
Vỏ tủ được làm bằng Panel PU tỷ trọng cao (40-45 kg/m3), dày 125mm - 150mm. Hai mặt bọc Inox 304 để đảm bảo vệ sinh an toàn thực phẩm và chống rỉ sét trong môi trường ẩm ướt.
3.4. Hệ thống đường ống môi chất
Sử dụng ống thép đúc hoặc ống Inox mềm (ống ruột gà) để kết nối các tấm lắc di động với đường cấp dịch/hồi hơi cố định. Thiết kế phải đảm bảo độ linh hoạt khi tấm lắc nâng hạ hàng nghìn lần mà không bị rò rỉ gas.
4. Tại Sao Nên Chọn Tủ Đông Tiếp Xúc Thay Vì Hầm Đông Gió?
| Tiêu Chí | Tủ Đông Tiếp Xúc | Hầm Đông Gió (Air Blast) |
|---|---|---|
| Thời gian đông | Rất nhanh (1.5 - 2.5 giờ). | Lâu hơn (4 - 8 giờ). |
| Tiêu thụ điện | Thấp (Không dùng quạt). | Cao (Tốn điện cho quạt đối lưu). |
| Chất lượng Block | Phẳng, vuông vức, chuẩn kích thước. | Bề mặt có thể bị lồi lõm do giãn nở. |
| Hao hụt sản phẩm | Thấp (Không bị gió thổi khô bề mặt). | Cao hơn (Hao hụt trọng lượng do bay hơi). |
5. Ứng Dụng Trong Chế Biến Thủy Hải Sản
Tủ đông tiếp xúc là lựa chọn số 1 cho các sản phẩm yêu cầu định hình khối:
- Tôm: Tôm thẻ/sú nguyên con hoặc bỏ đầu đóng block 1.8kg - 2kg.
- Cá Tra/Basa: Cá cắt khúc, cá nguyên con, phụ phẩm cá đóng block 5kg - 7.5kg.
- Surimi: Chả cá xay nhuyễn đóng block 10kg.
- Thịt: Thịt heo, bò, gà nhập khẩu đóng tảng lớn.
6. Năng Lực Chế Tạo Thiết Bị Của PTG
CÔNG TY TNHH XUẤT NHẬP KHẨU PTG không chỉ cung cấp thiết bị, chúng tôi cung cấp sự an tâm cho chủ đầu tư:
- Kinh nghiệm chuyên sâu: Đội ngũ kỹ sư PTG am hiểu tường tận về kỹ thuật nhiệt lạnh và cơ khí thủy lực, đảm bảo tính toán công suất máy chính xác, không thừa không thiếu.
- Vật tư chính hãng: Tấm lắc nhập khẩu mới 100%, Ben thủy lực mạ Crom cứng chống mài mòn, Van điều khiển Danfoss/Castel.
- Chế độ bảo hành: Bảo hành 12-24 tháng, hỗ trợ kỹ thuật trọn đời máy.
- Giá thành cạnh tranh: Chúng tôi có xưởng sản xuất trực tiếp tại TP.HCM, giúp giảm chi phí trung gian.
7. Liên Hệ Tư Vấn & Báo Giá
BÁO GIÁ TỦ ĐÔNG TIẾP XÚC 500KG - 2000KG
Giải pháp cấp đông Block nhanh nhất - Tiết kiệm điện nhất.
CÔNG TY TNHH XUẤT NHẬP KHẨU PTG
Địa chỉ: 37/43 Bến Lội, P. Bình Tân, Tp.HCM
Email: info@phuthogroup.com
GỌI NGAY: 0909 663 996
